
工程概况
本工程结构形式为双层焊接球网架,正放四角锥;网架上弦柱点支承。网架平面投影平面尺寸为:59.85米*58.5米,建筑投影面积为3501平米。网架失高3.85米,网架上部天窗高2.1米。网架下弦标高9.7米。
施工特点及安装方法的选择
由于本网架屋面下方存原有建筑物和设备。故采用满堂红脚手架搭设与滑移脚手架平台安装的方法相结合。而脚手架搭设平台高空散拼网架是最安全的一种安装方法。根据我单位的多年施工经验及本工程的实际特点可采用滑移脚手架平台安装的方法,脚手架采用焊接球网架制作而成。安装方便快捷,施工安全,节省材料。
施工难点及采取措施
一,滑移轨道的铺设
本工程的现场实际特点:施工现场场地地面不平整,局部存在沟、坑。对滑移轨道的铺设产生困难。对于这种情况的存在,我施工人员采取的措施为:对于小的沟、坑轨道可直接跨过铺设;对于大的沟、坑,采用在沟、坑内设支撑,支撑轨道的铺设。
二,网架上弦节点及天窗的拼装
本工程网架失高为3.85米,天窗高2.1米。而脚手架平台搭设标高为9.2米。施工人员只能在脚手架平台上安装网架的下弦球节点,而对上弦球节点及天窗的安装相对就比较困难。对于这种情况的存在,我施工人员根据以往类似工程安装的经验,决定采用龙门架活动支架支撑平台。
网架安装
一,网架安装概述
本工程结构形式为双层焊接球网架,正放四角锥;网架上弦柱点支承,由于网架屋面下方存原有建筑物和设备。故采用故采用满堂红脚手架搭设与滑移脚手架平台安装的方法相结合。而脚手架搭设平台高空散拼网架是最安全的一种安装方法。根据我单位的多年施工经验及本工程的实际特点可采用滑移脚手架平台高空散装安装的方法。安装方便快捷,施工安装,节省材料。
脚手架高空散装法是指将散件直接在设计位置进行总拼的方法。高空散装法有全支架法(满堂脚手架)和悬挑法两种。全支架法多用于散件拼装,而悬挑法则多用于小拼单元在高空总拼情况,或者球面网壳三角形网格的拼装。当全支架(满堂脚手架)拼装网架时,支架顶部常用木板或竹脚手板满铺,作为平台。悬挑法拼装时,需要预先制作好小拼单元,再用起重机将小拼单元吊至设计标高就位拼装。根据本工程的实际特点则采用全支架法(满堂脚手架)平台高空散装的安装方法。
二,网架安装方法
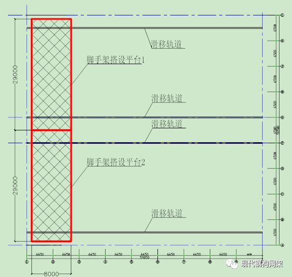
网架横向1~10轴,分为10个轴线,柱距6.65米,网架拼装分为9块拼装,脚手架滑动8次完成网架拼装。滑移方向为由1轴向10轴滑移采用滑移脚手架平台高空散装。脚手架搭设区域:宽8米,长58米,由两块脚手架组成。每块脚手架宽8米,长29米。脚手架由焊接空心球网架制作而成。
滑移轨道根据脚手架可铺设四道。轨道采用工字钢。
脚手架的滑移采用四台卷扬机同时牵引滑行。
网架的拼装属高空作业,为了施工安全,脚手架周围搭设安全维护网。
1.网架安装方向:
2.安装流程
材料进场——材料检验——搭设脚手架平台——高空拼装10~9轴/A~L轴网架。——滑移脚手架平台至9~8轴/A~L轴位置——高空拼装10~9轴/A~L轴网架……直至整体网架拼装完成——验收整体网架。三,网架滑移轨道的铺设
本工程脚手架平台整体平面尺寸为8米*58米=464平米。由两块脚手架组成,分别为8米*29米=232平米。每块脚手架铺设两道轨道,共计四道滑移滑移轨道。
滑轨接头处应垫实,若用焊接方法连接,应挫平高出轨面的焊缝,并在滑移轨道两侧,每隔5cm刻上一个刻度,供网架滑移用。滑移轨道采用25#工字钢。

脚手架平台及轨道布置示意图


脚手架平台立面示意图

滑移轨道与脚手架球连接的示意图

网架球枕木连接节点

滑移轨道节点示意图

脚手架滑移轨道节点示意图
四,遇沟、坑时轨道铺设的措施
根据本工程的自身特点,现场存在沟、坑。滑移轨道的铺设尽量避开沟、坑。当滑移轨道不可避免的遇到沟、坑的时候要采取适当的支撑措施。
1.当沟、坑的宽度或长度小于1米时,轨道可直接跨过。如下图所示:


小于1米的沟、坑滑移轨道铺设措施示意图
2.当沟、坑的宽度或长度大于1米时,在轨道下方设支撑钢管,钢管间距1米设置。在钢管支撑上方满铺脚手板后铺设滑移轨道。如下图所示

大于1米的沟、坑滑移轨道铺设措施示意图
3.当坑深大于两米时,支撑立管应设斜支撑或缆风绳,以保证立管支撑的稳定。

五,上弦球节点的拼装措施
为了安装网架上弦球节点及天窗部分网架。施工人员决定采用龙门架活动支架支撑平台。龙门架安装、拆卸方便。经济实用。

六,网架拼装施工方法及步骤
(一).拼装方法
1,拼装
a.放球:将已验收的焊接球,按规格、编号放入安装节点内,同时应将球调整好受力方向与位置。一般将球水平中心线的环形焊缝置于赤道方向。有肋的一边在下弦球的上半部分。
b. 放置杆件:将备好的杆件,按规定的规格布置钢管件件。放置杆件前,应检查杆件的规格、尺寸,以及坡口、焊缝间隙、将杆件放置在二个球之间,调整间隙,点固。
c.平面网架的拼装应从中心线开始,逐步向四周展外,先组成封闭四方网格,控制好尺寸后,再拼四周网格,不断扩大。注意应控制累积误差,一般网格以负公差为宜。
d.平面网架焊接,焊接前应编制好焊接工艺和网架焊接顺序,防止平面网架变形。
e. 平面网架焊接应按焊接工艺规定,从钢管下测中心线左边20~30mm处引弧移动脚手架最高搭设多少米,向右焊接,逐步完成仰焊、主焊、爬坡焊、平焊等焊接位置。
f. 球管焊接应采用斜锯齿形运条手法进行焊接,防止咬肉。
g.焊接运条到圆管上测中心线后,继续向前焊20~30mm处收弧。
h.焊接完成半圆后,重新从钢管下侧中心线右边20~30mm处反向起弧,向左焊接,与上述工艺相同,到顶部中心线后继续向前焊接,填满弧坑,焊缝搭接平稳,以保证焊缝质量。
2网架主体组装:
a.检查验收平面网架尺寸、轴线偏移情况,检查无误后,继续组装主体网架。
b. 将一球四杆的小拼单元(一球为上弦球,四杆为网架斜腹杆)吊入平面网架上方。
c. 小拼单元就位后,应检查网格尺寸,矢高,以及小拼单元的斜杆角度,对位置不正、角度不正的应先矫正,矫正合格后才准以安装。
d. 安装时发现小拼单元杆件长度、角度不一致时,应将过长杆件用切割机割去,然后重开坡口,重新就位检查。
e. 如果需用衬管的网络,应在球上点焊好焊接衬管。但小拼单元暂勿与平面网架点焊,还需与上弦杆配合后才能定位焊接。
3.钢网架上弦组装与焊接:
a.放入上弦平面网络的纵向杆件,检查上弦球纵向位置、尺寸是否正确。b.. 通过对立体小拼单元斜腹杆的适量调整,使上弦的纵向与横向杆件与焊接球正确就位。对斜腹杆的调整方法是,既以切割过长杆件,也可以用倒链拉开斜杆的角度,使杆件正确就位。保证上弦网格的正确尺寸。
c.调整各部间隙移动脚手架最高搭设多少米,各部间隙基本合格后,再点焊上弦杆件。
d.上弦杆件点固后,再点焊下弦球与斜杆的焊缝,使之连系牢固。
e. 逐步检查网格尺寸,逐步向前推进。网架腹杆与网架上弦杆的安装应相互配合着进行。
f. 架安装结束后,应按安装网架的条或块的整体尺寸进行验收。
4.焊接球网架安装保证外形尺寸控制措施:
a对于土建单位建筑物的定位轴线、平面封闭角、柱距位置线、地脚螺栓位置、标高进行检验,如有问题经设计变更在开始施工。对地脚螺栓要有保护螺纹措施。
b顶标高控制在±10mm左右。
c下弦球位置是决定整片网架尺寸是否正确的基准,所以要严格控制。下弦球与支托焊接好后应用水准仪抄平,根据球的不同直径确定相应的标高,无误后方可进行下一步。
d网架焊接后允许每段网架长度偏差±30mm;支座中心偏差±30mm;相邻支座标高偏差±15mm;最高与最低标高偏差±30mm;对于中支座标高偏差±30mm。
f为了减小误差,保证整体尺寸正确无误,焊接时无论上下弦都应校验顺直度。
g网架分段焊接过程中,分别采用一台经纬仪和一台水平仪跟踪校正网架的轴线位置及水平度。随时要对该部分网架下弦标高进行复核。
(二)网架拼装步骤示意图


步骤一:设置并抄平平台支撑

步骤二:按安装图安装下弦球


步骤三:连接下弦杆

步骤四:安装腹杆及上弦球

步骤五:连接第二网格上弦杆及腹杆

步骤六:将两网格安装成基本单元

步骤七:扩大基本单元

步骤八:安装腹杆

步骤九:拼装成较稳固基本单元

步骤十:扩大基本单元
七,脚手架滑移
1.脚手架滑移前准备
a.滑移前检查支撑在地面上的各临时支点底座离开地面。
b.检查网架的卸载完成,网架质量符合规范要求。
d.拆除连接两段脚手架的钢管,并保证两段分力间距在0.5米,防止一侧滑移时与另一侧相碰。
e 把脚手架上的配件和工具摆放平稳并牢牢固定,防止在脚手架滑移过程中坠落伤人。
2.脚手架滑移
在脚手架滑移工程中,有专一人统一指挥(由经验丰富的重工担任),每人配备一步对讲机,统一人员的协调分配,步调一致,,确保直线度。专人查看导轨是否走偏,导致有无破损。
3.滑移架子的固定:
在滑轮处采用木楔子,将滑移架子固定。
八,安装支托
根据图纸要求,测量后对支托进行现场安装。支托的安装可与网架同步安装。安装完成后及时按照图纸要求坡度复测。
九,网架验收
检查网架外观质量,应达到设计要求与规范标准的规定。
检查网架支座:网架安装后应注意支座的受力情况,网架支座的施工要严格按照设计要求进行。支座垫板、限位板等应按规定顺序、方法安装。
十,网架安装基准轴线位置、标高及垂直偏差纠正
1.轴线及标高规定
网架安装前应对建筑物的定位轴线(即基准轴线)、支座轴线和支承面标高,预埋件(预埋螺栓)位置等进行检查,做出检查记录,办理交接验收手续;并应符合下列规定:
建筑物的定位轴线(即网架安装的基准轴线)要求用精确的角度交汇法放线定位,并用长度交汇法进行复测,其允许偏差不超过L/1000(L为短边长度)。
(1)、网架安装轴丝标志(包括安装辅助轴线标志)和标高基准点标志应准确、齐全、醒目、牢固,并要经常进行复测,以防变动。
(2)、网架结构支承面、预埋件(预埋螺栓)的允许偏差应符合《钢结构工程施工质量验收规范》(GB 50205-2002)的规定。
2.控制措施
(1)、网架安装过程中应对网架的支座轴线、支承面标高(或网架下弦标高),网架屋脊线、檐口线位置和标高进行跟踪控制,发现误差积累应及时纠偏。纠偏方法可用千斤顶、倒链、钢丝绳、经纬仪、水准仪、钢尺等工具进行。
(2)、采用小拼单元进行拼装时,要严格控制小拼单元的定位线和垂直度。其允许偏差:定位线5mm;垂直度h/500(h为小拼单元高度)。
(3)、各杆件与节点连接时中心线应汇交于一点,螺栓球应汇交于球心。其偏差值不得超过1mm。
(4)、网架结构总拼完成后,网架结构安装允许偏差及检验方法应符合《钢结构工程施工质量验收规范》GB50205—2001的规定。
3.钢网架结构安装允许偏差及检查方法
小拼单元偏差值
项 目
允许偏差(mm)
节点中心偏移
2.0
杆件轴线的弯曲矢高
L1/1000且不大于5.0
锥体型
小拼单元
弦杆长度
+2.0
锥体高度
+2.0
上弦杆对角线长度
+3.0
平面网架
型小拼 单元
跨长
≤24m
+3.0 , —7.0
>24m
+5.0 , —10.0
跨中高度
+3.0
跨中
拱度
设计要求起拱
+L / 5000
设计未要求起拱
+10.0
检查数量:按单元数抽查5%,且不应少于5个。
检查方法:用钢尺和拉线等辅助量具实测。
L1—杆件长度,②L—跨长
中拼单元偏差值
项 目
允许偏差(mm)
单元长度L≤20m时,
拼接边长度
单 跨
+10.0
多跨连续
+5.0
单元长度L>20m时,
拼接边长度
单 跨
+20.0
多跨连续
+10.0
钢网架结构安装的偏差值(mm)
项 目
允许偏差
检查方法
纵向、横向长度
+1/2000且不大于30.0
用钢尺检测
支座中心偏移
L/3000,且不大于30.0
用钢尺或经纬仪实测
周边支承网架
相邻支座高差
L/400且不大于15.0
用钢尺和
水准仪实测
支座最大高差
30.0
多点支承网架
相邻支座高差
L1/800且不大于30.0
杆件弯曲矢高
L2/1000且不大于5.0
用拉线和钢尺窦测。
检查数量:除杆件弯曲矢高按杆件数抽查5%外。其余全数检查。
L—纵向、横向长度;②L1—邻支座间距;③L2—杆件长度。

临时用电安全管理
一、施工现场临时用电管理制度
为管好、用好施工现场的临时用电,做到“安全第一”,达到触电事故发生率为零的目的。现根据JGJ 46-2005《施工现场临时用电安全技术规范》和JGJ 59-2011《建筑施工安全检查标准》、施工现场临时用电的地方性政策、法规、条例、特制定了总包方对分包方从进场工程施工,需施工现场临时用电开始到结束,全过程的《施工现场临时用电管理制度》,在工作中认真执行。
1、 职责与权限
项目经理部职责:负责整个项目的施工现场临时用电的系统管理。
1负责监督、检查,施工现场临时用电的安全情况。
2参与发生配电设备事故和发生人身触电事故的调查。
3 配合项目法施工,全面推行对施工现场临时用电的安全的组织管理形式。
2、项目部各成员岗位责任
1项目副经理
1在主管项目全面工作的同时,组织学习、贯彻、探索、建立和推行科学的施工现场临时用电的安全管理办法和模式,并制定相应的工作标准和管理制度。
2负责对以用电为主或用电量较大的分包队伍,施工现场临时用电申请报告的审批。
3负责督促、检查施工现场,临时用电安全的落实情况。
4参与并会同各级有关部门对施工现场发生配电设备事故和发生人身触电事故的调查、分析。
5负责对施工现场临时用电的安全奖、罚的审批。
2项目机电负责人
1项目经理部,施工现场临时用电管理负责人,负责贯彻落实各级、各项用电管理规范、标准及制度和通知精神。
2负责对施工现场临时用电的管理及临时用电申请报告的审核。
3负责对施工现场临时用电的安全检查。
4参与发生配电设备事故和发生人身触电事故的调查。
5负责对电工进行施工现场临时用电的安全培训、考核和教育。
二、氧气、乙炔安全使用规定
氧气、乙炔放置安全距离应大于10m。
氧气、乙炔严禁在太阳下暴晒,更不可接近火源,与火源距离不小于10m
严禁用油手接触氧气瓶,还要防止起重机或其他机械落到氧气瓶上。
施工消防安全管理
1、成立工地消防领导管理小组,由项目经理负责,组员包括项目副经理,安全员,施工员,保卫人员,专职消防员。
2、成立工地消防小组,各作业班组为一个小队,由分管施工员任队长,作业班组长任副队长,各消防小队必须有五名固定队员,由作业班组长确定后,报施工员。
3、消防领导小组及消防队成员单牌应挂牌明示。
4、在施工场地内设置消火栓,消火栓周围3米不得堆放物料,每一消火栓配备60米长水龙带(65)一条,65水枪一支,同时消防水管必须保证供水。生活区内配置足够消防灭火器材。
5、严格执行动火申请制度,凡电焊、气焊及用明火处,周围不得有易燃易爆物,并且派专人监护,作业期间不得离岗。
6、作业区,生活办公区等易引起火灾的地方,应在显眼位置张贴禁止烟火等防火宣传标牌,队食堂区外,其它作业区、生活办公区内禁止使用电炉、煤炉、液化气炉,特殊用途的,须执行动火申请审批制度。
7、消防保卫人员经常定期检修各种消防器材,经常组织防火检查,消除各种火灾隐患难。消防小队人成员定期举行防炎活动,宣传安全用火,防火减灾。
安全检查及安全监督
日常性的检查:要求专职安全员经常性的、普遍的、针对安全带、安全网、进行有计划地、重点检查。
专业性检查:对本工程中的起重、拨杆、导链、油漆防火等专业材料、专项设备、专业场合进行检查。
季节性或气候性检查:本工程的材料及人员、机具都在高空,注意防风、防雷,如在冬季施工,注意防寒。
节假日前后的检查:本工程的安装人员长期在外施工,遇节假日易产生思乡情绪或安全上产生思想麻痹,应在节前做好综合检查,节后也要进行遵章守纪检查。
不定期检查:在开工和停工,或检修中,以及工程竣工后的安全检查。
一、安全事故的处理:
(一)、处理原则:
事故原因不清楚的不放过。
事故责任者和员工没有受到教育不放过。
事故责任者没有处理不放过。
没有制定防范措施不放过。
(二)、处理程序:
报告安全事故。
处理安全事故,抢救伤员,排除险情,防止事故蔓延扩大,做好标识,保护好现场。
安全事故调查。
对事故责任者进行处理。
编写调查报告并上报。
文明施工、环保管理
我公司在创造企业经济利益发展的同时,一直兼顾社会责任,关注健康与环保方面的事务。
一、现场施工文明管理
1、施工管理人员及各工种作业人员一律配发工作卡,进入施工场地均应配戴,否则不得入内。
2、在大门外显眼位置悬挂项目部名称牌扁。
3、在大门口内侧设立橱窗,内挂“五牌一图”,同时设置宣传栏,读报栏,黑板报,并加装照明灯具,橱窗由项目部办室专门负责管理。
4、定期对施工人员进行外事纪律的教育。
5、工地现场若具备条件应实行封闭管理。
6、及时清理生活及建筑垃圾。在节假日组织工文娱活动,看电视、录相等。
二、材料堆放管理
现场材料布置由远及近依次设置板材配件、钢构件,各区设置明显标志牌,各种材料及半成品编号清晰明显,以防现场混乱,影响施工。
为防止材料、成品或半成品锈蚀,材料应堆放在仓库中;若现场没仓库,则应搭设临时仓库,临时仓库地面应高出周围地坪;仓库应设专人看管,并建立相应的管理制度。
各种结构件及屋面材料堆放方式应尽可能接近安装后的支撑状况,以防止变形。
三、生活文明及环保
针对本工程特点:无水污染、大气污染、噪声污染、固体废料及粉尘的污染,主要注意施工现场及生活环境的整洁卫生及人员日常行为管理。
生活、办公用房,2间作为办公用,其余为生活用房,每间住宿6个,食堂、卫生浴室、厕所等设施由专人定期打扫。工地现场应设专门保安人员负责工地现场的保卫工作。
四、后勤管理
为保证施工人员的战斗力,提高他们的工作积极性,应成立管理班子加强后勤管理。管理班子为非常设机构,由项目经理牵头,施工志愿人员组成。主要职责代表施工人员对伙食、娱乐设施、运动设施进行管理并定期组织文艺活动。
成品保护措施
一、杆件的堆放
待包装或待运的构件,按种类安装区域及发货顺序,分区整齐存放,标有识别标志,便于清点。
露天堆放的构件,搁置干燥无积水处,防止锈蚀,底层垫有足够的支承面,防止支点下沉,构件堆放平稳垫实。
相同构件叠放时,各层钢材件的支点应在同一垂直线上,防止钢构件被压变形。
构件的存储、进出库,严格按企业制度执行。
构件的包装和固定的材料要牢固,以确保在搬运过程中构件不丢失不遗落。构件包装时,应保证不变形、不损坏、对于长短不一,容易掉落物件,特别注意端头加封包。机加工零件及小型板件,装在箱中发运。包装件上必须书写编号、标记、外形尺寸、如长、宽、商、重,做到标志齐全清晰。
二、运输过程中的成品保护
由本工程货物量大,且种类较多。吊运大件必须有专人负责,使用合理的工夹具,严格遵守吊运规则,以防止吊运过程中发生大的震动,撞击变形,坠落或其他损坏。
装车时,必须有专人监督,清点上车的箱号及打包件的编号,车上堆放做到牢固稳妥,并增加必要的捆扎,防止构件松动遗失。
在运输过程中,保持平稳,超长、超宽、超高物件运输必须由经过培训的驾驶员,押运员负责并在车上设置标记。
严禁野蛮装卸,装卸人员装卸前,要熟悉构件重量、外形、尺寸,并检查吊马、索具的情况,防止意外。构件到达施工现场及时组织卸货,分区堆放好。
三、现场拼装及安装成品保护
构件进场应整齐堆放在稳定枕木上,根据安装的顺序,构件编号,分类存放。防止变形和损坏。
构件堆放应做好排水,防止积水对钢结构构件的腐蚀。在开装和安装作业时,应尽量避免磕碰,重击。避免现场焊接过多辅助措施构件,以免对母材造成影响。在拼装时,在地面搭设刚性平台,搭设刚性胎架,进行拼装。拼装支撑点的设置,要进行计算,以免造成构件永久变形。
四、涂装面的保护
构件在工厂涂装底漆。防腐底漆的保护是半成品保护的重点。避免尖锐的物体碰撞、摩擦。减少现场辅助设施焊接量,能够采用捆绑包箍的,尽量采用。
五、后期成品保护
后期成品保护重点是:网架屋盖系统成品及面层在其他工序介入施工后的保护。做到以下几点:
1、工程安装后需辅设面板,安装马道系统和水、电、风系统,在其他工序介入施工时,需注意以下事项:
严禁集中堆放建筑材料;严禁其他施工单位未经许可在钢结构件上进行焊接和钻孔;严禁在杆件上吊物。
焊接部位及时补涂防腐涂料。
设备安装,装修与钢结构施工有需交接时,则通过监理单位与网架结构施工单位办理施工交接手续。然后方可在网架结构构件上进行下一道工序。
高空施焊作业事项
1.电焊:
a)电焊机应安设在干燥、通风良好的地点,周围严禁存放易燃、易爆物品。电焊机应设置单独的开关箱,高空作业时应穿好戴防护用品,系好安全带,施焊完毕,拉闸上锁。遇雨雪天,应停止露天作业。
在潮湿地点工作,电焊机应放在木板上,操作人员应站在绝缘胶板或木板上操作,并减少和钢构件的接触。
严禁在无防坠落措施的位置施焊。焊接带电设备时,必须先切断电源。
积留雨水的开口或管道,焊接前必须清理干净,将所有孔口打开,保持空气流通。
在高空作业施焊时,必须开设安全网、固定在结构上的脚踏板。钢结构上的照明电压不得超过36V。焊工身体应用绝缘材料与结构隔离开。
地线不得在搭易燃、易爆和带有热源的物品上,接地线不可连在建筑金属构架上,接地电阻不大于4Ω。
更换场地,移动电焊机时,必须切电源,检查现场,清除焊渣。
高空焊接,必须系好安全带。焊接周围应备有消防设备。
焊接安全网上方很近的构件时,施焊部位下面应垫石棉板或铁板。
电弧焊烧焊现场的10cm范围内,不得堆放氧气瓶、乙炔瓶、木材等易燃物。
2.气焊:
气焊作业应遵守本方案(一)中的有关规定。
乙炔瓶应采用定型产品,必须备有灵敏可靠的防止回火的安全装置。
乙炔瓶与氧气瓶不得同放一处,距易燃易爆品不得少于10m。严禁用明火检验是否漏气。氧气、乙炔应随用随领,下班后送回专用库房。
氧气瓶、乙炔瓶受热不得超过35℃,防止火花和锋利物件碰撞胶管。气焊枪点火时应按“先开乙炔、先关乙炔”的顺序作业。氧气瓶、氧气表及焊割工具的表面,严禁沾污油脂。
乙炔瓶不得放在电线的正下方,焊接场地距离明火不得少于10m。
氧气瓶应设有防震胶圈,并旋紧安全帽,避免碰撞、剧烈震动和强烈阳光曝晒。
点火时焊枪不得对人,正在燃烧的焊枪不得随意乱放。
施焊时,场地应通风良好。施焊完毕,应将氧气阀门关好,拧紧安全罩。气焊严禁使用未安装减压器的氧气瓶进行作业。
3.焊接质量
二氧化碳气体保护电弧焊(简称CO2焊)的保护气体是二氧化碳(有时采用CO2+Ar的混合气体)。是以二氧化碳气为保护气体,进行焊接的方法。在应用方面操作简单,适合自动焊和全方位焊接。在焊接时不能有风,适合室内作业由于它成本低,二氧化碳气体易生产,广泛应用于各大小企业二氧化碳气体保护电弧焊(简称CO2焊)的保护气体是二氧化碳有时采用CO2+O2的混合气体)。
CO2焊接优点包含:
1.焊接成本低。其成本只有埋弧焊、焊条电弧焊的40~50%。
2.生产效率高。其生产率是焊条电弧焊的1~4倍。
3.操作简便。明弧,对工件厚度不限,可进行全位置焊接而且可以向下焊接。
4.焊缝抗裂性能高。焊缝低氢且含氮量也较少。
5.焊后变形较小。角变形为千分之五,不平度只有千分之三。
6.焊接飞溅小。当采用超低碳合金焊丝或药芯焊丝,或在CO2中加入Ar,都可以降低焊接飞溅。
———END———
限 时 特 惠: 本站每日持续更新海量各大内部创业教程,一年会员只需98元,全站资源免费下载 点击查看详情
站 长 微 信: Lgxmw666





