房车的水路一文说清楚具有独立厨房卫生间通勤和旅居兼顾的自改房车(床车)之水系统

房车水系统三维模型图
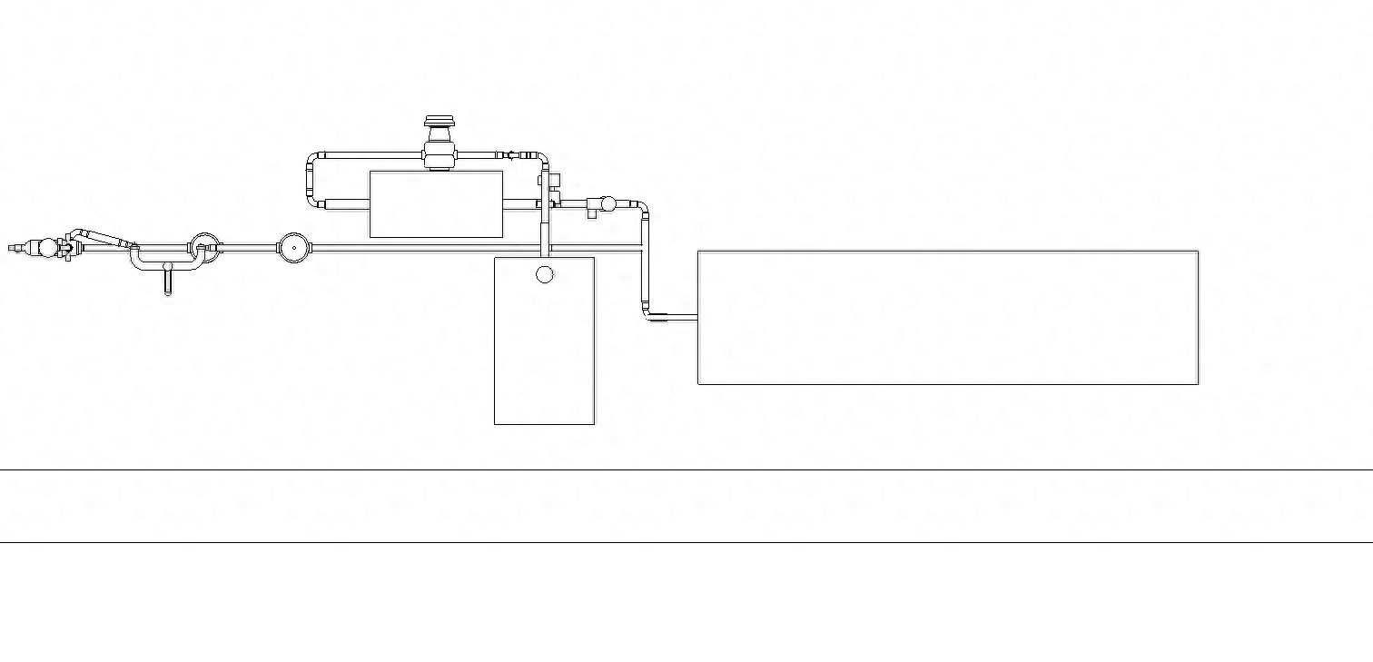
hello大家好,我们又见面了,我是云参谋闲云,竭尽全力做您生活的高参。上篇闲云介绍了旅居车平台的选择及布局。如果没有看到闲云的这篇文章,请进入闲云的主页阅读《通勤和旅居兼备的旅居车》。这一篇开始我们来谈谈水系统的改装。我们出去游玩,基本上是白天开车,晚上休息。因此准备一天的水电容量就可以了。若带水太多的话会增加车的重量,会增加油耗,而且增加危险性。根据计算,设置120升的清水箱,30升的热水箱,40升的灰水箱。清水箱采用1.0mm厚的304不锈钢制作,悬挂于汽车底盘下面,有利于降低汽车的重心,有利于汽车的安全行驶。特别提醒,清水箱要设置防浪板。注水口放在后部厨房里面。可以采用压力注水也可以采用重力注水。入水口处安装一个初级过滤器过滤泥沙杂质等,这样就可以在野外直接使用河水、溪水。热水器有两种方案:一是利用发动机的冷却液加热,这种方法是把输送冷却液的管道切断,把热交换器(也就是俗称的过水热)串联接到道管路中,利用冷却液的热量把水加热。这种方法的缺点是要改变汽车冷却液的管道过水热,而且若交换器穿孔就会造成两种液体互混过水热,可能会引起部分汽车部件生锈。但是这种情况发生的概率是很低的。二是利用汽车发动机的尾气加热,这种方法不需要改变汽车的结构,只需把加热部件安装在三元催化后面的排烟管上,结构简单,安全可靠,即使漏水,也不会对汽车造成影响。闲云准备采用这种结构和电加热蓄热式热水器结合的方式。买一个30升左右的电热水器做热水箱,可能比自己制作成本更低。为了省钱完全可以买一个二手的电热水器。热水箱放置在第二排座椅下面。热水箱安装一个水位传感器和温度传感器,显示和控制部件安装在主驾驶座椅旁的控制箱中,便于观察和控制。用一个24伏的直流水泵给热水器充水和使水循环加热。汽车行驶的过程中就把水加热了。若驻车几天时间,可以使用电加热。若是能合理安排行程,基本可以不用电,就能够实现每天有热水用。热水循环管道上要安装自动排气阀和泄压阀等安全装置。在淋浴或者做饭的时候需要热水,通过一个压力开关控制水泵供水。水管采用16mm(俗称4分)热水铝塑复合管或燃气金属软管,加热器采用16*1.5mm紫铜管制作。

水系统平面图

水系统立面图

铝塑管
闲云将会在下一篇介绍房车的电系统的设计。云参谋,生活中的高参,请关注云参谋,云参谋将会给你带来意想不到的收获。写稿不易,点赞打赏是美德。欢迎关注、转发、留言讨论。
———END———
限 时 特 惠: 本站每日持续更新海量各大内部创业教程,一年会员只需98元,全站资源免费下载 点击查看详情
站 长 微 信: Lgxmw666





